Primăria Oradea a finalizat etapa de proiectare la faza PT pentru proiectul de realizare a unei parcări subterane de tip Park and Ride în Piața Emanuil Gojdu, perimetral pe cele trei laturi ale Catedralei Ortodoxe Române.
Viitoarea parcare va fi realizată în subteran, pe un singur nivel. Capacitatea totală a parcării subterane este de 277 locuri, din care 268 locuri pentru autoturisme cu 6 locuri pentru persoane cu dizabilități și 6 pentru mașini electrice, respectiv 9 locuri pentru motociclete. Parcajul va dispune de afișaj electronic și va fi accesibil în exploatare numai pentru autoturisme de clasă mică, medie şi mare, până la lungimea de 5 m, exclusiv pentru cele cu motoare pe benzină, diesel şi hibrid electrice sau electrice, cu strictă interdicţie pentru GPL. Sunt prevăzute 3 stații de reîncărcare electrice care deservesc 6 autoturisme, automate de taxare şi o cabină de tip ghișeu. Parcarea va avea 4 lifturi pentru persoane, toalete publice și dotări specifice de prevenire și stingere a incendiilor.
Suprafața construită a parcării este de 6.354,55 mp. Prin proiect se prevede amenajarea platformelor existente din jurul Catedralei Ortodoxe, deasupra parcajului, cu dală urbană pietonală, prevăzută cu spații dalate, spații verzi, mobilier urban, zonă de bike sharing și o porțiune din traseul pistei de biciclete orășenești. Dalajul urban se va extinde deasupra carosabilului până la linia de tramvai din dreptul Casei de Cultură a Sindicatelor.
Accesul la parcaj și ieșirea se vor asigura prin două fluxuri de intrare, dinspre Calea Clujului și strada Griviței, prin șanțul Cetății.
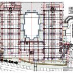
Din punct de vedere constructiv, s-a optat pentru:
– sistemul de fundare este de fundaţii izolate compuse din bloc de beton simplu şi cuzinet sub stâlpi şi fundaţii continui sub diafragme şi elevaţiile de închidere a demisolului;
– tronsonul sudic și cel nordic au câte 7 travei de 7,60 m cu câte două deschideri de 11,60 m şi o deschidere de 4,35 m, tronsonul estic are 5 travei de 7,60 m şi o deschidere de 11,60 m;
– structura de rezistenţă a parcajului se compune din cadre de beton armat monolit;
– stâlpii se vor executa de 45×70 dezvoltaţi pe direcţia deschiderilor;
– planşeul se va executa din beton armat monolit în grosime de 20cm.
Indicatorii tehnico-economici la faza PT urmează să fie supuși spre aprobare în ședința ordinară a Consiliului Local de joi, 19 decembrie. După aprobarea indicatorilor se va demara procedura de licitație pentru realizarea lucrărilor de execuție. Proiectantul estimează durata de execuție a lucrărilor la 18 luni.
Valoarea estimată a lucrărilor C+M la faza actuală este de 26.504.699,86 lei fără TVA, iar cea a investiției se ridică la 32.817.175,07 lei fără TVA, aici fiind incluse dotări, echipamente și utilaje cu montaj.
Documentația tehnică a fost elaborată de SC Pro-Arh SRL Oradea, arhitect Pafka Ernest.
Proiectul Construire parcare tip Park and Ride în Piața Emanuil Gojdu face parte din programul de construire de parcări supraterane şi subterane în municipiul Oradea, urmărindu-se îmbunătăţirea condiţiilor de parcare a autoturismelor în zonele aglomerate şi a celor care fac naveta înspre Oradea. Conceptul de parcare Park and Ride este des întâlnit în marile orașe europene, asemenea parcări fiind amplasate în vecinătatea mijloacelor de transport în comun, încurajându-se astfel folosirea transportului public și mersul cu bicicleta, scopul fiind acela de a evita congestionarea traficului.
„Am gândit ca această parcare să se realizeze în apropiere de Calea Clujului și de zona Cetății Oradea, deoarece cel mai important flux de circulație este dinspre Cluj-Napoca, peste 20.000 de maşini pe zi, și se află totodată în vecinătatea celui mai apropiat traseu al liniei de tramvai, care pleacă de acolo în trei direcții din oraș. Va fi destinată celor care locuiesc în zona metropolitană și turiștilor, care vor putea să-și lase mașina și să folosească de aici transportul în comun. De asemenea, locuitorii din zonă și cei care vin la Catedrala Ortodoxă vor putea s-o utilizeze. Ea va fi operată în colaborare cu operatorul OTL, tariful de parcare va fi mai mic decât în alte zone iar cei care vor parca aici vor putea călători gratuit pe mijloacele de transport în comun în ziua respectivă, pe baza tichetului de parcare”, a declarat primarul Ilie Bolojan.
decembrie 16, 2019
Spitalul Clinic Municipal „Dr. Gavril Curteanu", cu sprijinul Primăriei Oradea prin Direcția Mangement Proiecte cu Finanțare Internațională, a semnat vineri, 13 decembrie, cu Ministerul Lucrărilor...
decembrie 17, 2019
Având în vedere rolul istoric determinant pe care l-a avut Revoluţia de la 1989, precum şi datoria morală de a omagia jertfa eroilor Revoluţiei Române...