Știri

august 16, 2022

Share:

Noi proiecte avizate de către specialiștii din CMUAT

news-image

Zeci de proiecte complexe au fost analizate de specialiștii Comisiei municipale de urbanism și amenajare a teritoriului în ședința de săptămâna trecută, printre ele numărându-se și cele ale administrației publice locale.

Scuarul de pe latura nordică a clădirii Primăriei Oradea, amenajat

Primăria Oradea continuă să arate un interes deosebit pentru amenajarea spațiilor verzi, stimularea mobilității urbane și încurajarea populației în a renunța la autoturisme și a alege mijloace de transport mai puțin poluante.

Astfel, municipalitatea a solicitat avizul Arhitectului Șef pentru proiectul de amenajare a scuarului situat în apropierea clădirii Primăriei Oradea, pe latura situată înspre str. Tudor Vladimirescu, primind aviz favorabil.

„Reamintim pe această cale că politica de pietonalizare este una importantă la nivelul municipiului Oradea și are în vedere creșterea mobilității nemotorizate și este în strânsă legătură cu îmbunătățirea transportului public de persoane, precum și cu utilizarea mai frecventă a acestuia de către locuitorii orașului. Ne dorim un oraș prietenos cu locuitorii săi, dar și cu cei care ne vizitează și punem preț pe aspectul îngrijit și estetic al spațiilor amenajate care trebuie să fie parte integrantă a întregii arhitecturi urbane”, a precizat viceprimarul Arina Moș.

În zona menționată va fi realizat un sistem de irigare complet automatizat pentru asigurarea umidității necesare zonelor plantate, iar sistemul de iluminat public va fi modernizat și va fi gândit astfel încât să se integreze armonios în ambient și cu arhitectura clădirilor ce îl înconjoară.

Totodată este prevăzută realizarea unei plantații care să ofere varietate vizuală, dar și a unui ecosistem corect în raport cu cel existent. Zona verde va fi acoperită cu gazon, iar în perimetrul scuarului va fi amplasat mobilier urban constând în coșuri de gunoi, bănci, fântână cu apă potabilă, lampadare și un panou de informare. Investiția menționată va fi realizată cu fonduri de la bugetul local.

O nouă pistă de biciclete în Oradea

Orădenii care aleg să se deplaseze pe două roți vor avea încă o pistă de biciclete. Primăria Oradea a solicitat avizul Arhitectului Șef pentru lucrarea „Amenajare pistă de biciclete Pasaj Cartierul Grigorescu până la pista existentă de pe str. Sextil Pușcariu”.

Astfel, este propusă spre proiectare această nouă pistă cu scopul de a o lega pe cea existentă din zona Pasaj Cartier Grigorescu (intersecția sens giratoriu străzile Rapsodiei și Thurzo Sandor), cu cea de pe str. Făgărașului și cu pista care există deja în zona Piața 22 Decembrie (intersecția cu str. Sextil Pușcariu).
Aceasta ar urma să aibă o lungime de aproximativ 1.068 m și lățimea de 2,50 m. De asemenea, este prevăzută o fâșie de zonă verde cu lățimea variabilă de aproximativ 1,00 m amplasată între marginile trotuarului și a noii piste de biciclete.

La nivelul municipiului sunt amenajați deja aproximativ 50 de kilometri de pistă de biciclete, atât din fonduri proprii, cât și din fonduri europene.

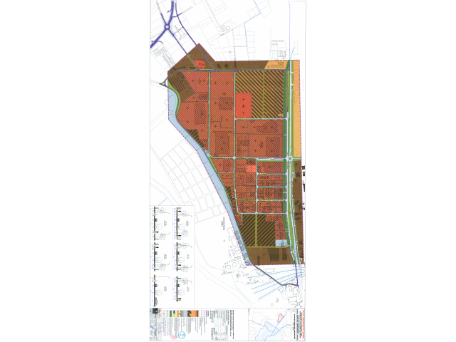
Parcul Industrial Eurobusiness I va fi extins

Agenția de Dezvoltare Locală Oradea a solicitat avizul Arhitectului Șef pentru modificarea Planului Urbanistic Zonal și extinderea și actualizarea PUZ-ului aprobat cu HCL nr. 566/29.07.2021 pentru Parcul Industrial Eurobusiness I – Oradea.

Astfel, prin documentația de urbanism se propun următoarele modificări față de PUZ-ul actual:
– extinderea Parcului Industrial I cu o suprafață de 94.041mp (parcelele identificate cu nr.cad. 213271, 213273);
– reconfigurarea drumului de legătură între str. Ion Mihalache și str. Eugen Carada (reglementat prin PUZ la profil transversal de 14m), acesta fiind propus la un profil transversal de 7 m cu sens unic;
De menționat este faptul că restul reglementărilor urbanistice stabilite deja prin PUZ aprobat vor rămâne valabile. Documentația se va supune procedurii de consultare a populației, conform prevederilor din „Regulamentul Local de implicare a publicului în elaborarea sau revizuirea documentațiilor de urbanism și amenajarea teritoriului” (aprobat prin HCL nr.495/2019);

În prezent, suprafața totală a parcului este de 139,86 de hectare, iar gradul de ocupare este de de 99,6%.

„Este vorba despre o documentație de tip PUZ modificator care reglementează parcelarea pentru implementarea unui obiectiv de investiții strategic pentru municipiul Oradea. Vorbim despre investiția celor de la STIHL, care vor să construiască o capacitate de producție ce va fi realizată etapizat”, a menționat Radu Fortiș, arhitectul-șef al orașului.

Zona actualului Parc Industrial Eurobusiness I a fost introdusă în intravilanul municipiului Oradea prin Planul Urbanistic General aprobat în anul 1994, fiind socotită încă din anii ‘60 o zonă cu potențial de dezvoltare pentru platforma industrială de vest a orașului.

Amplasarea îi conferă acestuia o conexiune facilă cu toate drumurile de importanță națională și europeană din zonă, urmând să aibă legătură inclusiv cu noul tronson al centurii Oradea ce va realiza conexiunea cu autostrada A3 – M4 (Ungaria) și cu drumul expres Oradea-Arad. Legătura cu aceste drumuri se va face prin strada Ion Mihalache – Augustin Maior.

Urmărește-ne pe Social Media:

CONSTRUIT CU IN ROMANIA
© Copyright 2023
Sari la conținut