martie 10, 2026
Primaria municipiului Oradea anunta elaborarea unui plan urbanistic zonal in vederea reconversiei functionale din UTR ALV in zona de locuinte individuale, str. Piatra Craiului, nr.cad.171132, 211835, 183375, 175290, Oradea.
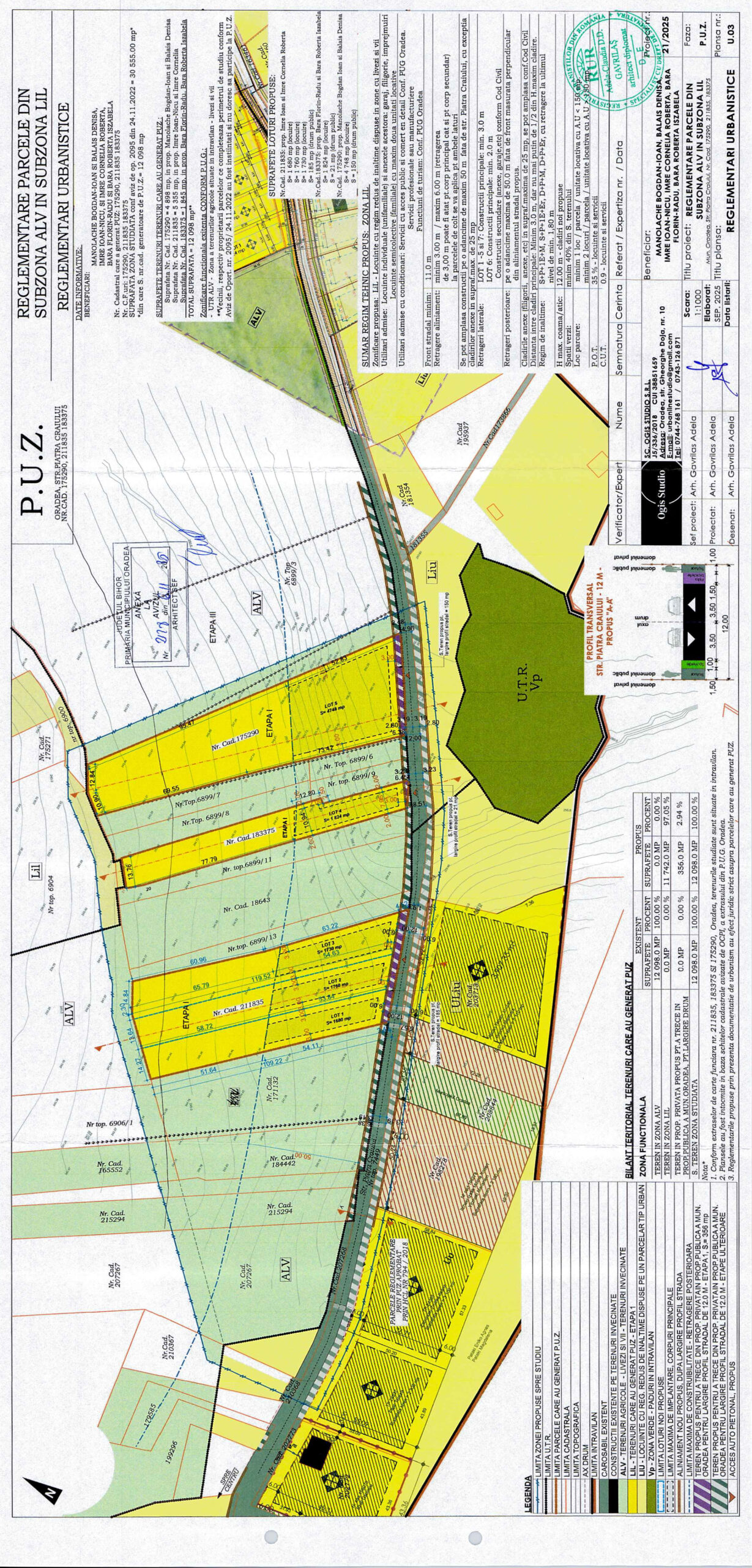
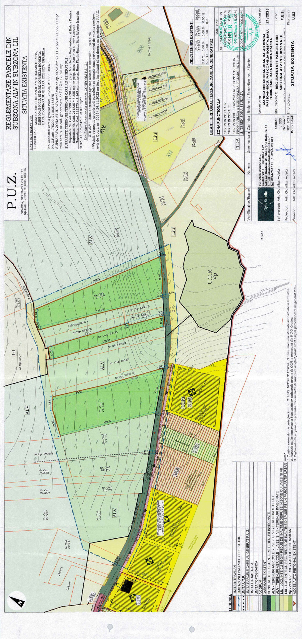
Zona de studiu a PUZ-ului: Subzona din UTR ALV cuprinzand parcelele situate la frontul str.Piatra Craiului cuprinse intre UTR ULiu la vest si limita estica a terenului identificat cu nr.cad.175290); Parcelele propuse pentru reconversie funcțională din ALV în UTR de tip Lil – nr.cad.211835, 183375, 175290; S=12098 mp.
Planul urbanistic zonal a fost initiat de Manolache Bogdan si elaborat de Arh. RUR Adela Gavrilas.
– Prevederi P.U.G. – R.L.U. aprobate anterior (PUG aprobat cu HCL nr.501/2016 cu RLU modificat prin HCL nr.260/2021):
– Terenul studiat este situat în UTR: ALV si indeplineste conditiile specificate in RLU aferent PUG (modificat prin HCL nr.260/2021) privind posibilitatea urbanizarii;
– regim de construire: izolat;
– funcţiuni predominante: terenuri neurbanizate cu destinaţie agricolă – livezi şi vii
– H max: 8,0m respectiv (S/D)+P+E
– POT max = 30,0%; – CUT max = 0,6; (indici raportati la suprafata dedicata anexelor agricole
– retragerea faţă de aliniament: – se stabilește prin documentații de urbanism sau studiu de oportunitate
– retrageri minime faţă de limitele laterale: – se stabilește prin documentații de urbanism sau studiu de oportunitate
– retrageri faţă de limitele posterioare: se stabilește prin documentații de urbanism sau studiu de oportunitate
– Prevederi P.U.Z. – R.L.U. propuse:
– UTR: de tip Lil;
– regim de construire: izolat, cu clădiri de locuit de tip urban modern, retrase din aliniament;
– funcţiuni predominante: Locuinţe individuale unifamiliale sau semicolective (2 unități de locuit) si anexele acestora;
– H max: Regim maxim de inaltime – S + P +E+ M/R, D + P + R ( M)
– POT max = 35,0%; – CUT max = 0,9;
– retragerea faţă de aliniament ; min 3,0m de la aliniamentul str.Piatra Craiului;
– retrageri faţă de mejdiile laterale: minim 3,0m
– retrageri fata de mejdia posterioara: construcțiile se vor amplasa pe o adancime de 50 m, în zona parcelei orientată spre limita de proprietate dintre drumul public / privat si limita de proprietate a parcelei edificabile, cu excepţia ediculelor cu caracter provizoriu ce contribuie la organizarea grădinii (filigorii / pavilioane, depozite pentru unelte de grădină etc), a căror suprafaţă însumată va fi de maximum 25 mp (exceptand terasele acoperite).
– circulaţii şi accese: accesul la amplasament se realizeaza pe str.Piatra Craiului
– echipare tehnico-edilitară: racordare la retelele edilitare existente in zona. Pe str.Piatra Craiului există rețele de apă și energie electrică până în dreptul parcelelor studiate.Conform adresei nr.18448/2025 de la Compania de Apa Oradea, există proiect privind și extinderea rețelei de canalizare
– Se propune:
a) Reconversie functionala din UTR ALV in UTR Lil a parcelelor identificate cu nr.cad.211835, 183375, 175290; S=12098 mp. Restul parcelelor cuprinse în zona de studiu rămân în ALV
b) parcelarea terenului identificat cu nr.cad.211835 în 3 loturi
c) Stabilirea reglementărilor urbanistice pentru parcelele cuprinse in zona de studiu;
d) Reglementarea profilului transversal al str.Piatra Craiului în dreptul parcelelor studiate .
Accesul la parcelele studiate se va realiza diret din str.Piatra Craiului
– Se propune largirea str.Piatra Craiului la profil transversal de 12,0m (6,0m din ax pe partea beneficiarilor);
– documentația de urbanism care va fi supusa spre aprobare consiliului local, va conține documentația cadastrală privind dezmembrarea terenului necesar dezvoltării rețelei stradale și documentul în baza căruia se va face transferul terenului (aparținând inițiatorului PUZ-ului), in proprietatea municipiului Oradea;
In temeiul art. 28 al Regulamentului local de implicare a publicului in elaborarea sau revizuirea documentatiilor de urbanism si amenajarea teritoriului, aprobat prin HCL 495/2019, modificat prin HCL 817/2024, in perioada 11.03.2026-06.04.2026 publicul poate sa consulte si sa-si exprime opinia, in scris privind documentele complete ale propunerilor PUZ-ului.
Plansa cu reglementarile propuse prin PUZ poate fi consultata pe pagina de internet www.oradea.ro la https://oradea.ro/urbanism/planuri-urbanistice/ sau la sediul Primariei Oradea- in Centrul de Relatii cu Publicul, marti si vineri, intervalul orar 13-15.
Sesizarile/sugestiile se pot trimite la adresa de e-mail: alina.cadar@oradea.ro , prin posta la adresa: Primaria municipiului Oradea, Piata Unirii, nr.1,Directia Arhitect Sef, Compartiment Urbanism si Avize sau in Centrul de Relatii cu Publicul, la sediul Primariei Oradea.
Persoana responsabila cu informarea si consultarea publicului este d-na Alina Cadar, consilier in cadrul Directiei Arhitect Sef–Compartimentul Urbanism si Avize, telefon 0259/408876, e-mail: alina.cadar@oradea.ro.
Raspunsul la observatiile transmise va fi publicat in intervalul 07.04.2026-25.04.2026 pe paginile de internet: www.oradea.ro. Va informam faptul ca in situatia in care depuneti sesizari/observatii, la prezenta documentatie, termenul raspunsului nostru catre dumneavoastra se poate prelungi, depinzand de punctul de vedere formulat de arhitect impreuna cu initiatorul acestui plan.
Echipare Tehnico-Edilitara
descarcă
Proprietatea asupra Terenurilor
descarcă
Reglementari Urbanistice
descarcă
Situatia Existenta
descarcă
martie 10, 2026
Primaria municipiului Oradea anunta elaborarea unui plan urbanistic zonal in vederea restructurarii unei zone cu caracter industrial. Construire ansamblu de clădiri cu funcțiune mixtă, str....
martie 12, 2026
nr.cad.174203 in 2 loturi si reglementare terenuri, pentru construire locuinta cu doua unitati locative, nr.cad.174203, 174202, str. Alexandru Macedonski, nr.14-16, Oradea Primaria municipiului Oradea anunta...