iulie 13, 2012
A N U N T referitor la rezultatele procesului de informare si consultare a publicului privind elaborarea PUZ – Parcelare teren pentru amplasare locuinte individuale, str. Pavilioanele CFR nr.cad.13873, 171541, 173381, 173382-Oradea
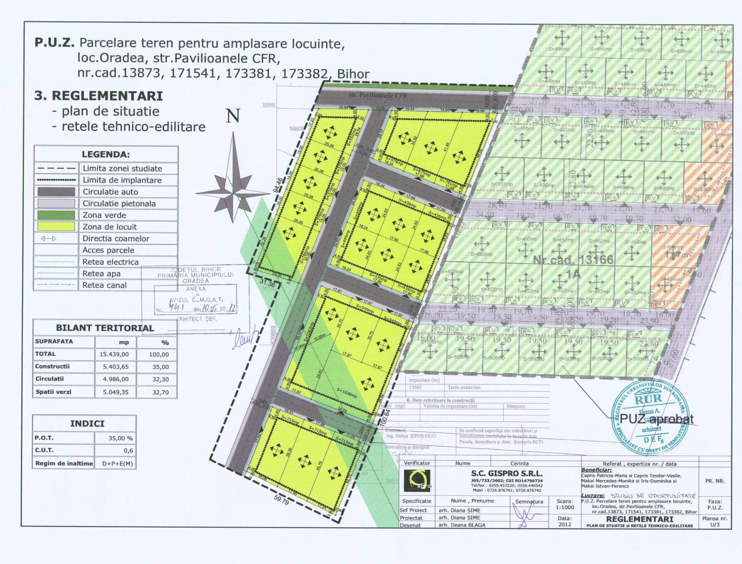
Primaria municipiului Oradea anunta ca in perioada 15.06 – 9.07.2012, destinata consultarii documentelor complete si propunerilor
PUZ – Parcelare teren pentru amplasare locuinte individuale, str. Pavilioanele CFR nr.cad.13873, 171541, 173381, 173382-Oradea
a fost inregistrata adresa emisa de SC Electrica SA – Filiala Oradea prin care se comunica initiatorului ca avizul de amplasament pentru obiectivul studiat prin PUZ, se elibereaza in baza unui studiu de coexistenta care se executa la comanda si pe cheltuiala beneficiarului.
In consecinta PUZ – Parcelare teren pentru amplasare locuinte individuale, str. Pavilioanele CFR nr.cad.13873, 171541, 173381, 173382-Oradea va fi supus aprobarii Consiliului Local al municipiului Oradea, dupa obtinerea avizului de coexistenta si in conditiile impuse prin acest aviz.
iulie 13, 2012
A N U N T privind intentia de elaborare PUZ - Parcelare teren pentru amplasare locuinte individuale, str.Prunilor nr.cad. 3639 si 12219-OradeaPrimaria municipiului Oradea anunta...
iulie 19, 2012
A N U N T privind intentia de elaborare PUZ - Schimbare de destinatie din zona functionala A in zona functionala mixta de servicii si...