Planuri Urbanistice

octombrie 16, 2009

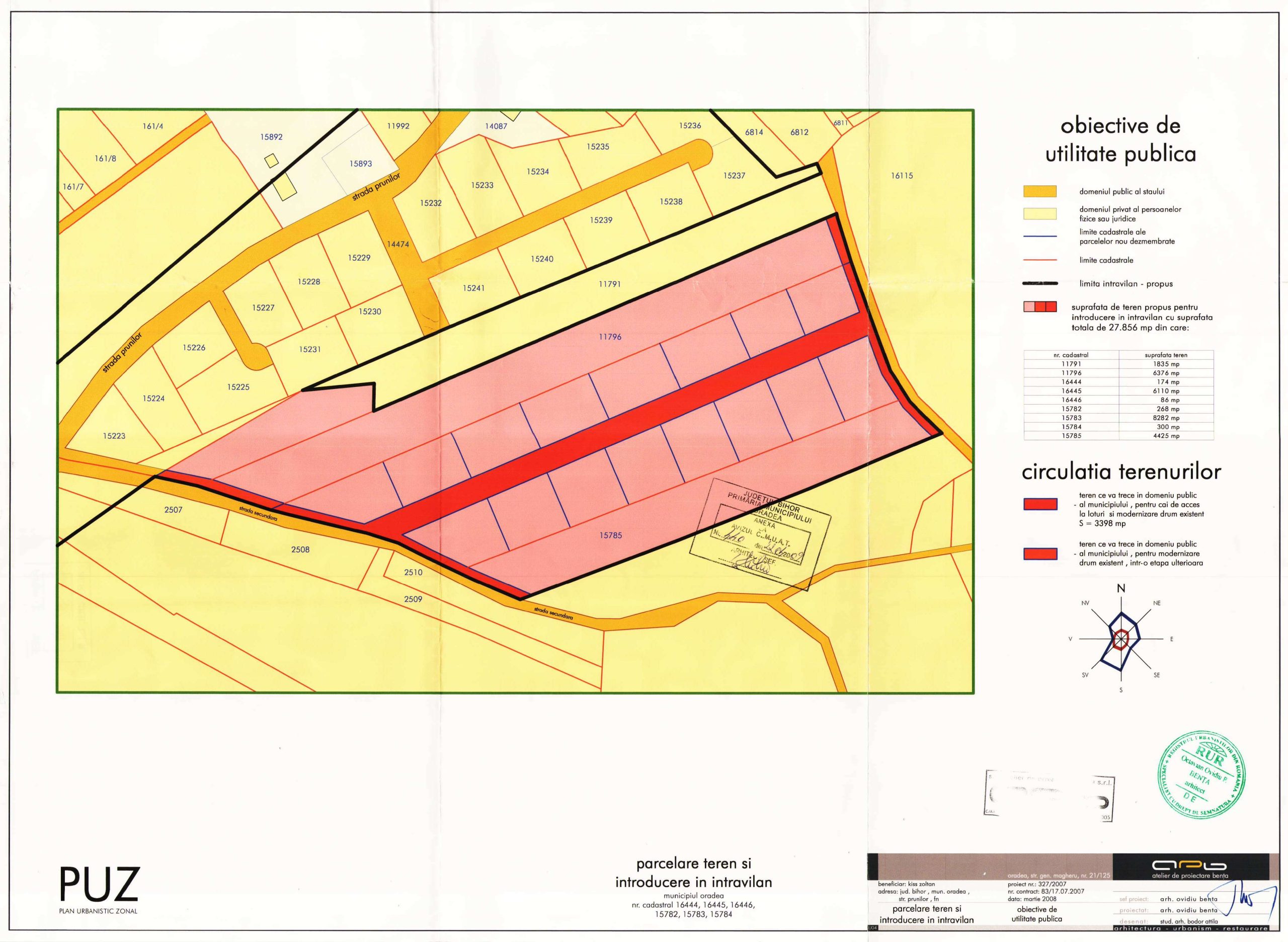
Planul urbanistic din data de 16.10.2009

Planul urbanistic din data de 16.10.2009

CONSTRUIT CU IN ROMANIA
© Copyright 2023
Sari la conținut