septembrie 08, 2017
A N U N T
privind elaborarea PUZ – Urbanizare in vederea dezvoltarii unor activitati economice cu caracter industrial; Construire sediu firma, hala de depozitare, service, str.Uzinelor, nr.cad.6434, 4700, 4701, 166132, 166130, 184941- Oradea
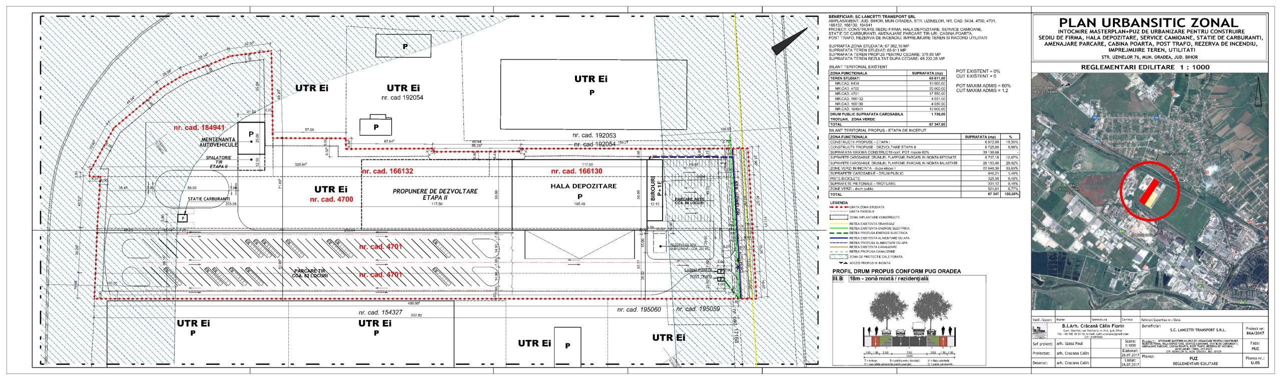
Primaria municipiului Oradea anunta elaborarea unui plan urbanistic zonal de urbanizare in vederea dezvoltarii unor activitati economice cu caracter industrial; Construire sediu firma, hala de depozitare, service, conform proiectului intocmit de catre arh. Szasz Paul. Zona de studiu stabilita prin avizul de oportunitate nr.1163/29.06.2017 este zona cuprinsa intre: Terenul cu S = 67347 mp, delimitat de str.Uzinelor (E), calea ferata uzinala (V) , la nord si sud de proprietati private;
Prin planul urbanistic zonal initiat de SC LANCETTI TRANSPORT SRL reprezentat prin GHIB IONEL, se propune urbanizare in vederea dezvoltarii unor activitati economice cu caracter industrial; Construire sediu firma, hala de depozitare, service, identificat cu nr.cad.193928 in proprietatea beneficiarilor SC LANCETTI TRANSPORT SRL, conform planselor de Reglementari urbanistice (U.02 SI U.03) aferent PUZ.
– Mobilarea terenului studiat, se va realiza etapizat, conform propunerii prezentate in plansa U.03; In prima etapa se va construi o hala de depozitare in regim de inaltime parter, un corp de cladire P+E cu destinatia de birouri, un corp de cladire P cu destinatia atelier pentru mentenanta autovehicolelor, statie de carburanti, cabina poarta, post trafo si un rezervor subteran de apa, iar intr-o etapa ulterioara se propune dezvoltarea activitatii prin extinderea halei si a construirea unei spalatori pentru autovehicole de mare tonaj;
– In incinta se vor amenaja locuri de parcare aferente functiunilor conform prevederilor din RLU aferent PUG (anexa 2); spatii verzi amenajate: minim 20% din suprafata parcelei
– Se propune largirea str.Uzinelor, in dreptul amplasamentului studiat, la un profil transversal de 18,0m (9,0m din ax pe partea beneficiarilor), iar terenul necesar largirii strazii va treace din domeniul privat in proprietatea publica a municipiului Oradea; Documentatia ce va fi supusa spre aprobare consiliului local va contine documentul in baza caruia se va face transferul terenului, din proprietate privata in proprietatea publica a municipiului Oradea;
– Reglementari pe zona studiata:
– Regim de inaltime: D(S)+P+E(M); – POT maxim = 35,0%; CUT maxim = 0,9;
– Limita de implantare: minim 4,50m de la aliniamentul drumurilor de acces;
– Propunerile privind parcelarea se vor studia prin documentatii de urbanism ulterioare;
In temeiul art. 28 al Regulamentului local de implicare a publicului in elaborarea sau revizuirea documentatiilor de urbanism si amenajarea teritoriului,aprobat prin HCL 161/2011, in perioada 11.09.2017 – 06.10.2017, publicul poate sa consulte si sa-si exprime opinia, in scris privind
documentele complete ale propunerilor PUZ la sediul Primariei municipiului Oradea -Centrul de Relatii cu publicul, in intervalul orar destinat preluarii documentelor ( 8:30-16:30).
Persoana responsabila cu informarea si consultarea publicului este d-na Camelia Ciente si d-na Maria Turbucz, consilier in cadrul Institutiei Arhitect sef – Compartimentul Urbanism si Avize, telefon 0259/408876, e-mail: maria.turbucz@oradea.ro
Raspunsul la observatiile transmise va fi publicat in intervalul 09.10.2017 – 23.10.2017 pe paginile de internet: www.oradea.ro si http://arhitectsef.oradea.ro
Arhitect sef
Antonina Buruiana
ANUNT_ NOU_elab PUZ- LANCETTI.doc.docx
descarcă
U02. PUZ – REGLEMENTARI URBANISTICE_2.jpg
descarcă
U03. PUZ – REGLEMENTARI URBANISTICE-MOBILARE_4.jpg
descarcă
U04. PUZ – CIRCULATIA TERENURILOR_3.jpg
descarcă
U05. PUZ – REGLEMENTARI EDILITARE_5.jpg
descarcă
septembrie 06, 2017
A N U N Tprivind intentia de elaborare a Planului Urbanistic -Construire imobil de locuinte colective cu spatii comerciale, str. Avram Iancu nr.11, nr.cad.196538 OradeaPrimaria...
septembrie 11, 2017
A N U N Treferitor la rezultatele procesului de informare si consultare a publiculuiprivind elaborarea PUZ- Dezvoltare retea stradala, zona str.Al. Hasas, str.Gen. N.Sova, str.Nufarului,...