iunie 13, 2024
Primaria municipiului Oradea anunta ca in perioada 25.04.2024-25.05.2024 destinata consultarii documentelor complete si propunerilor din:
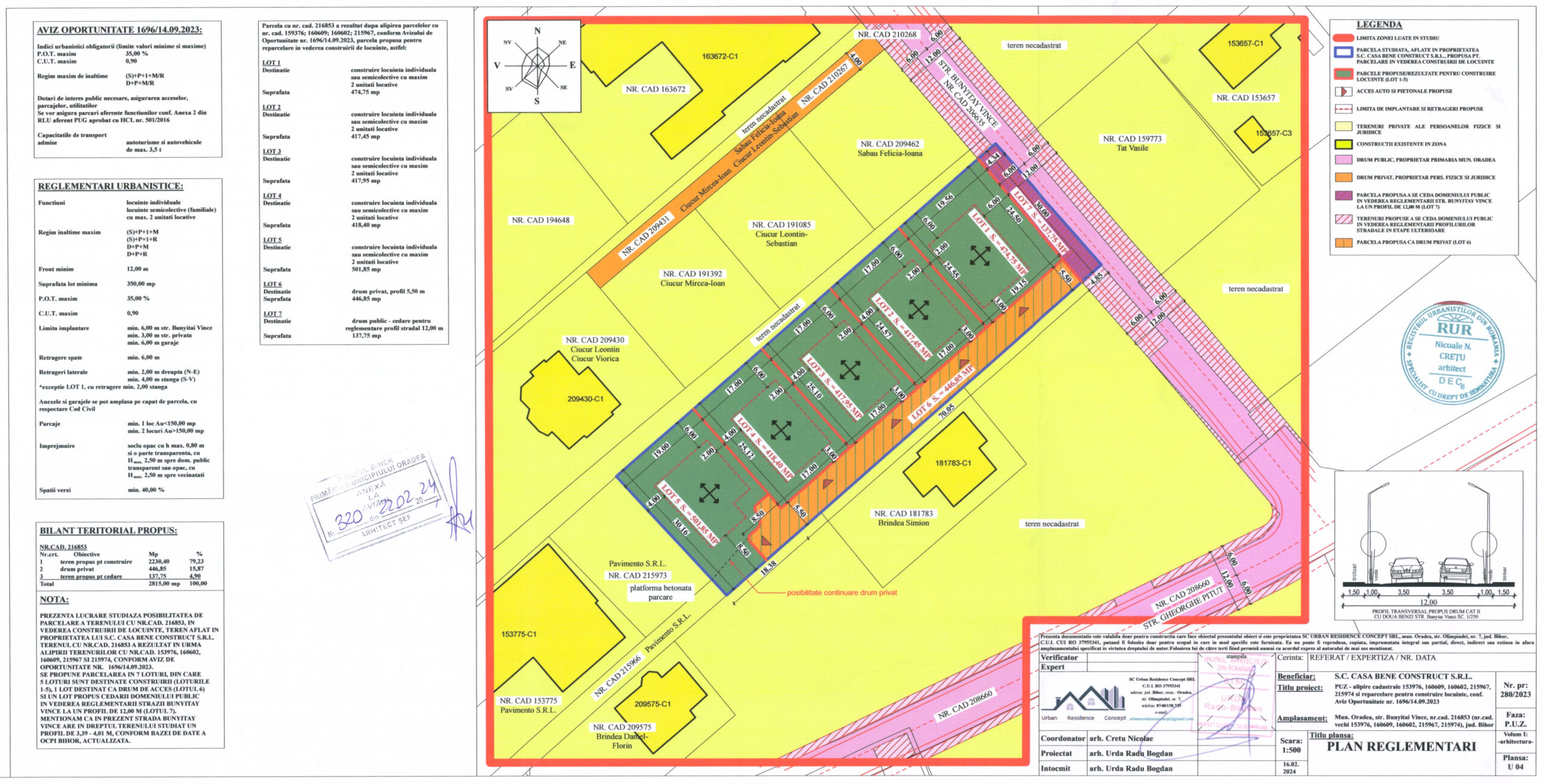
PUZ- Operațiuni cadastrale (alipire cadastrale 153976, 160609, 160602, 215967, 215974) și parcelare, str.Bunyitay Vince, Oradea
nu au fost inregistrate observatii/sugestii de modificare a reglementarilor propuse prin planul urbanistic zonal.
In consecinta documentatia de urbanism PUZ- Operațiuni cadastrale (alipire cadastrale 153976, 160609, 160602, 215967, 215974) și parcelare, str.Bunyitay Vince, Oradea va fi supusa aprobarii Consiliului Local al municipiului Oradea, in forma avizata prin avizul Arhitectului-Sef nr.320/22.02.2024, corelat cu avizele solicitate prin Certificatul de Urbanism nr. 4171/22.09.2023.
Memoriu General
descarcă
Plan de Situatie Existent
descarcă
Plan de situatie Initial
descarcă
Regim Juridic si Circulatia terenurilor
descarcă
Reglementari
descarcă
Retele Edilitare
descarcă
iunie 13, 2024
Primaria municipiului Oradea anunta elaborarea unui plan urbanistic de detaliu in vederea construirii unei hale (a 2-a hală pe parcelă), str. Calea Borsului, nr.38J3, Oradea....
iunie 17, 2024
Primaria municipiului Oradea anunta intentia de elaborare a unui plan urbanistic zonal de reconversie functionala din M4 in M1 si construire imobil locuinte colective cu...