martie 25, 2024
Primaria municipiului Oradea anunta ca in perioada 12.01.2024-06.02.2024 destinata consultarii documentelor complete si propunerilor din:
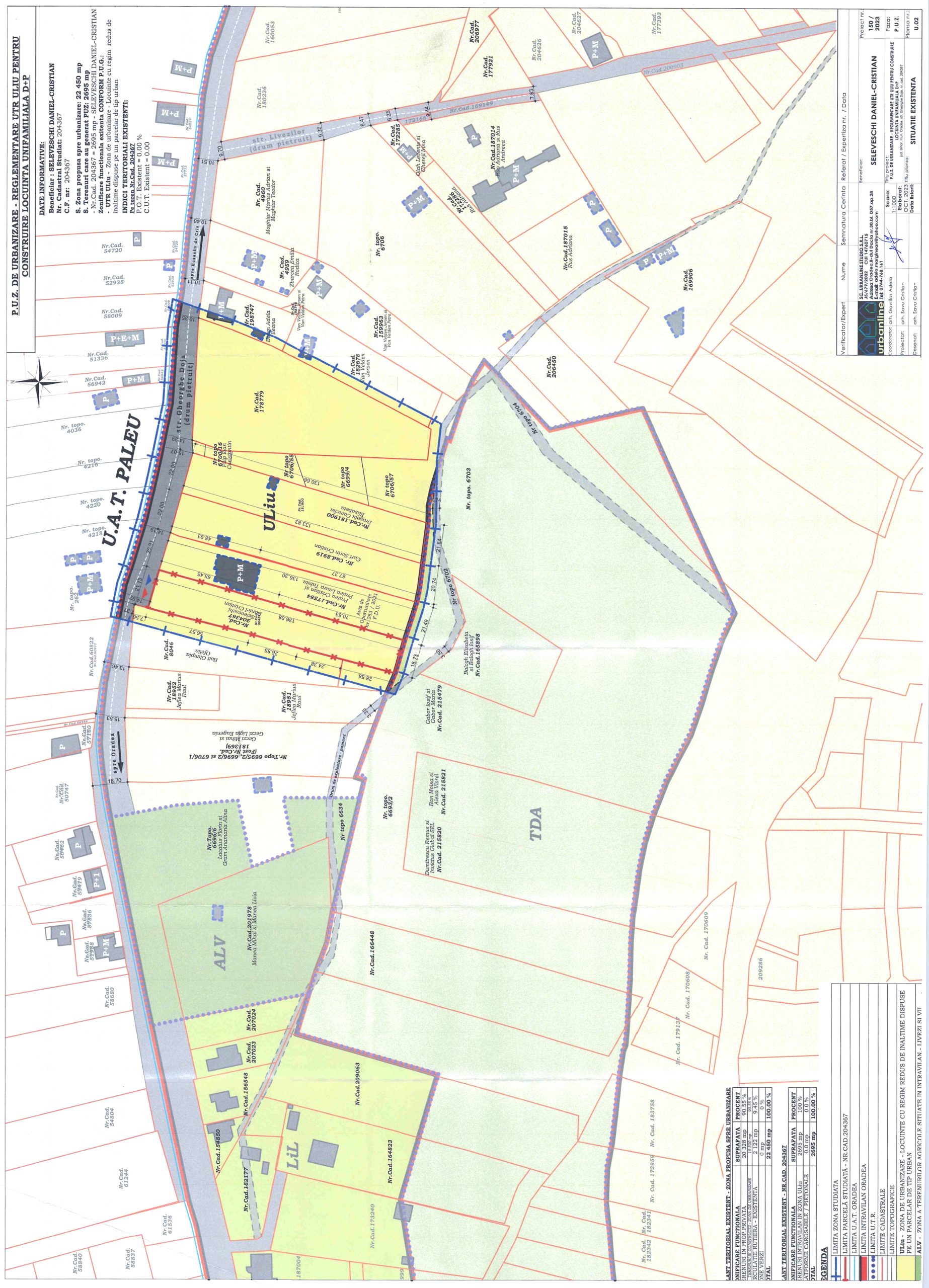
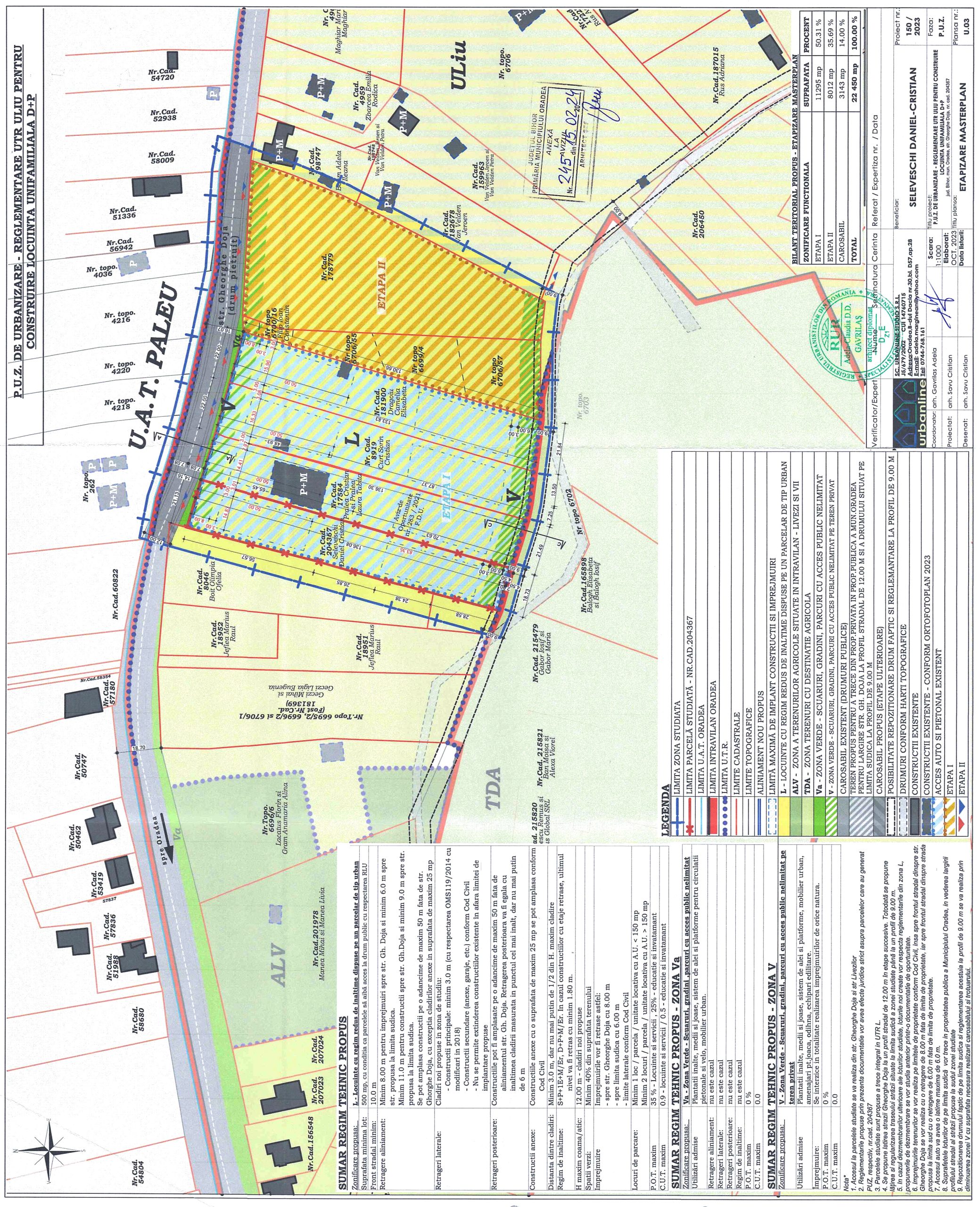
PUZ URBANIZARE – Reglementare parcele – Etapa 1; Construire casa unifamiliala pe parcela cu nr.cad.204367, str. Gheorghe Doja, Oradea
au fost inregistrate observatii/sugestii de modificare a reglementarilor propuse prin planul urbanistic zonal.
In consecinta documentatia de urbanism PUZ URBANIZARE – Reglementare parcele – Etapa 1; Construire casa unifamiliala pe parcela cu nr.cad.204367, str. Gheorghe Doja, Oradea va fi supusa aprobarii Consiliului Local al municipiului Oradea, in forma avizata prin avizul Arhitectului-Sef nr.245/15.02.2024, corelat cu avizele solicitate prin Certificatul de Urbanism nr. 4228/28.09.2023.
Circulatia si proprietatea asupra terenurilor
descarcă
Echipare Tehnico-Edilitara
descarcă
Etapizare Masterplan
descarcă
Memoriu
descarcă
Reglementari Urbanistice
descarcă
RLU
descarcă
Situatia Existenta
descarcă
Anunt
descarcă
martie 08, 2024
Primaria municipiului Oradea anunta intentia de elaborare a unui plan urbanistic zonal de parcelare teren pentru construire locuințe colective mici, str. Alesdului, nr. cad.214502, Oradea....
martie 26, 2024
Primaria municipiului Oradea anunta ca in perioada 31.01.2024-25.02.2024 destinata consultarii documentelor complete si propunerilor din: Planul Urbanistic Zonal - Dezvoltare activitati economice tertiare -...